• Home
  • Work
  • About
  • Contact

PETER COHAN Architect

  • Home
  • Work
  • About
  • Contact

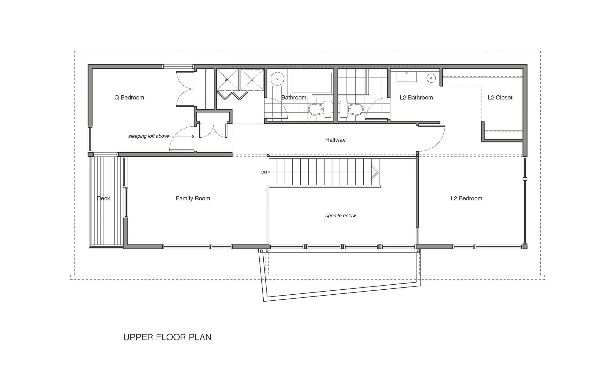
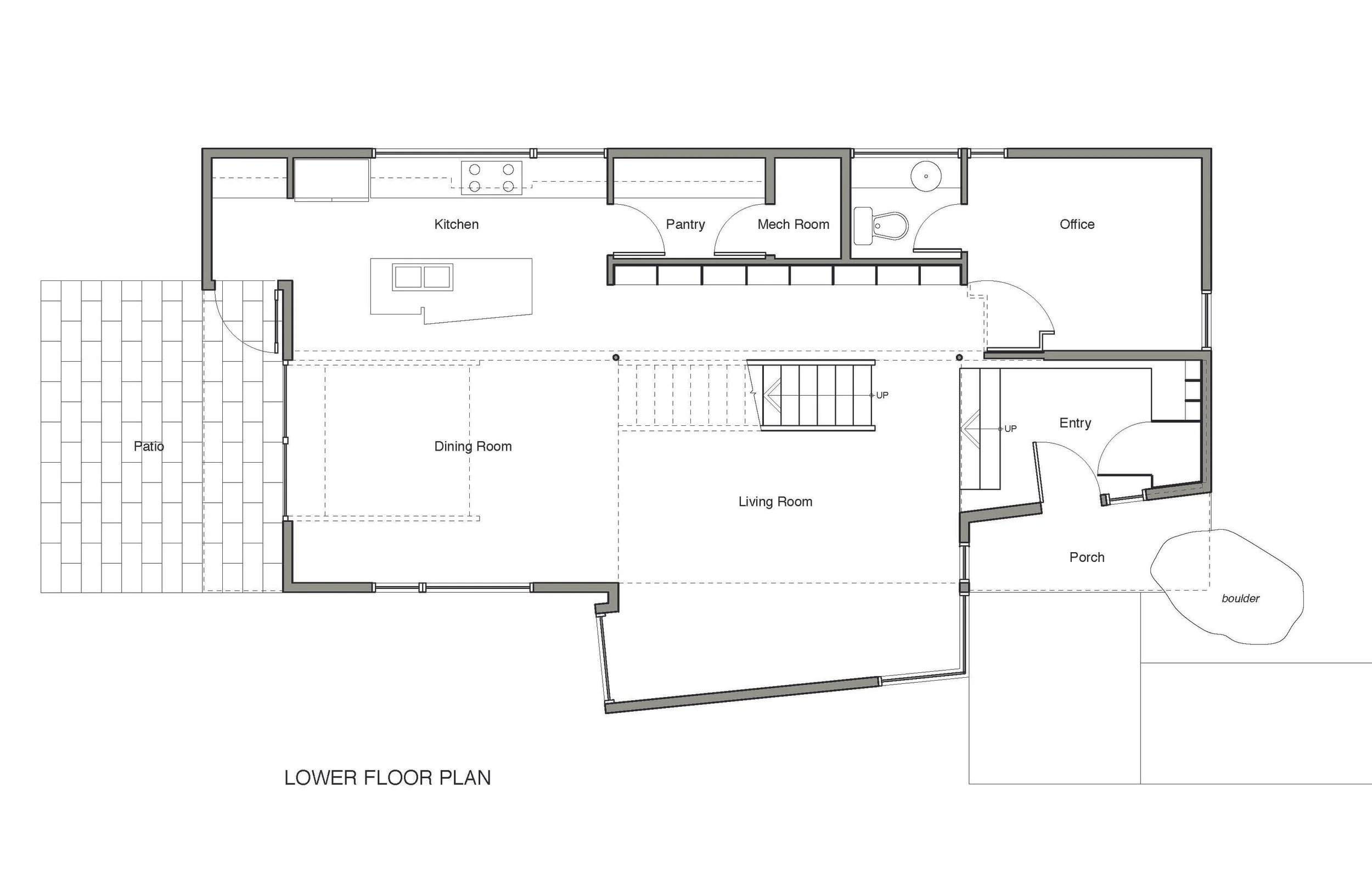
L2Q House

The clients for this house in the Beacon Hill neighborhood of Seattle wanted to build economically, responsibly and creatively.  The 1,940 square-foot house has a simple rectangular volume that has been folded in two places on the ground floor to respond to the particularities of the site.  Living spaces are oriented to the south to optimize sunlight.  The entry porch angles toward the street - with an embedded boulder to provide a kid-friendly perch.  The house has abundant wall space for art and shelves for books.  Activities revolve around a double-height living space and an open-riser stair.  A garage door in the dining/kitchen area allows activities to flow outdoors in good weather.

Livability and durability were of paramount importance.  The house was built with advanced framing techniques and has a radiant concrete floor.  The rain-screen walls are clad with cedar slats in the places they can be touched and corrugated metal for a maintenance-free exterior elsewhere.

L2Q 3.jpg
L2Q 4.jpg
L2Q 5.jpg
L2Q 6.jpg
L2Q 8.jpg
L2Q 14.jpg
L2Q 15.jpg
L2Q 16.jpg
L2Q 17.jpg
L2Q 18.jpg
L2Q 10.jpg
L2Q 11.jpg
L2Q 12.jpg